$1,375 / Mes

7911 SE King Rd Unidad 19

,

Milwaukie, OR 97222

Hace 2 semanas
| Edit

Menos de 30 minutos

El tiempo de viaje se calcula en la hora pico.
Compartir
Favoritos
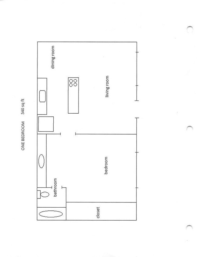
  • Habitaciones

    1

  • Baños

    1

  • Pies cuadrados

    540 pies²

7911 SE King Rd Unidad 19
Compartir
Favoritos

Acerca de esta casa

---- PROGRAME UNA VISITA EN LÍNEA EN: ---- ¡Próximamente apartamento de una habitación en Milwaukie! Con administración en el lugar, cualquier problema o inquietud se puede abordar con prontitud. Ubicado cerca de tiendas y transporte público, King Manor es el lugar perfecto para llamar hogar. Programe un recorrido hoy y experimente la facilidad de vivir en King Manor en Milwaukie. Estacionamiento: Uno asignado. Opciones de arrendamiento: 12 meses Cargos mensuales de servicios públicos $ 13.00 Agua $ 50.00 Alcantarillado $ 18 Basura El residente pondrá la electricidad a su nombre. Debido a la mudanza: Un mes completo de cargos mensuales como alquiler, cargo fijo de servicios públicos, estacionamiento, etc. (El segundo mes es prorrateado) Depósito de seguridad (50% - 200% del valor del alquiler) Esta unidad no es una unidad de vivienda accesible VER Y SOLICITAR: Programe una visita visitando, Nuestros criterios de selección se encuentran aquí - - Mascotas: Se admiten perros y gatos, Se aplican restricciones de raza. Máximo de 2 mascotas. Las mascotas y los animales con ESA se examinan por separado. Todos los inquilinos, tengan o no mascota, deben completar la evaluación. Es gratuita para los inquilinos sin mascotas o con ESA. El depósito y el alquiler por mascota se determinan según los resultados. Los depósitos por mascota varían desde $300 y el alquiler por mascota varía entre $30 y $50 mensuales. ¡No pierda esta oportunidad! Llámenos hoy mismo. *Las fotos y los metros cuadrados son representativos de la propiedad o unidades similares, pero podrían no corresponder a la unidad exacta disponible ni a las mismas condiciones. Un lugar de estacionamiento reservado. Lavandería en el lugar. Administración en el lugar.

7911 Se King Rd se encuentra en Clackamas County en el código postal 97222.

* El precio mostrado es el alquiler base. No incluye las tarifas opcionales seleccionadas por el usuario, ni las tarifas variables o basadas en el uso, ni los cargos obligatorios que deben pagarse antes o en el momento de la mudanza, o al momento de la salida. El precio, la disponibilidad, las tarifas y cualquier oferta especial de alquiler aplicable están sujetos a cambios sin previo aviso.
* Las definiciones de la superficie varían. La superficie cuadrada que se muestra es aproximada.

Contactar

  • Listado Por Leasing Team
Vecindario

El Southgate vecindario de Portland, Oregón, cuenta con una parte de la extensión hacia el sur las afueras de la ciudad y, de hecho, está ubicado fuera de los límites de la ciudad sureña. Está ubicado directamente junto al histórico una carreta senderos que condujo los colonos en dirección sur hasta el Valle de Willamette, en el 1800s. Sin embargo, hoy el Southgate/ área de Milwaukee reclamaciones reconocimiento como un apacible, bastante elegante, pero un poco más barata lugar para vivir que los vecindarios más cerca del centro de la ciudad. Encerrado hacia el oeste por las luces de la autopista Interstate 205 carretera de circunvalación del centro de Portland, Southgate alberga una de las principales tiendas de ternera que corre a lo largo del lado oeste de la autopista por más de una milla.

Obtén más información sobre la vida en Southgate 
Educación
Institutos y Universidades Distancia de
Institutos y Universidades Dist.
En coche: 4 minutos 1.7 mi
En coche: 13 minutos 4.5 mi
En coche: 12 minutos 4.6 mi
En coche: 20 minutos 8.4 mi
7911 SE King Rd Unidad 19 está a 4 minutos o 1.7 millas de Clackamas C.C., Harmony Campus. También está cerca de Reed College et Portland Community College.
Transporte

Las opciones de transporte disponibles en Milwaukie incluyen Se Fuller Road, a 1.5 millas de 7911 SE King Rd Unidad 19. 7911 SE King Rd Unidad 19 está cerca de Portland International, a 12.7 millas o 21 minutos de distancia.

Tránsito / metro Distancia de
Tránsito / metro Dist.
En coche: 3 minutos 1.5 mi
En coche: 5 minutos 1.6 mi
En coche: 9 minutos 4.0 mi
En coche: 8 minutos 4.2 mi
En coche: 11 minutos 6.2 mi
Tren suburbano Distancia de
Tren suburbano Dist.
En coche: 12 minutos 6.7 mi
En coche: 22 minutos 9.7 mi
En coche: 30 minutos 12.7 mi
En coche: 30 minutos 12.7 mi
En coche: 24 minutos 16.7 mi
Aeropuertos Distancia de
Aeropuertos Dist.
Portland International
En coche: 21 minutos 12.7 mi
Cómo desplazarse
Bastante apto para caminar
Caminabilidad
60 / 100
Algo de transporte público
Transporte Público
40 / 100
Excepcionalmente apto para conducir
Facilidad para Conducir
90 / 100
Favorablemente apto para andar en bici
Ciclabilidad
50 / 100

Puntajes proporcionados por

¿Qué significan la caminabilidad, el transporte público, la facilidad para conducir y la ciclabilidad? La caminabilidad mide la distancia a pie a las necesidades diarias. El transporte público mide el acceso al transporte público. La facilidad para conducir mide la congestión, la disponibilidad de estacionamiento y el acceso a las principales vías. La ciclabilidad mide qué tan adecuado es el área para andar en bicicleta. Cómo funciona
-
Soundscore
- / 100

Tráfico

-

Aeropuerto

-

Empresas

-

Puntajes proporcionados por

HowLoud ¿Qué es una clasificación de puntaje de ruido? La clasificación de puntaje de ruido es el conjunto del ruido provocado por el transito de vehículos o de aviones y de fuentes locales. Cómo funciona
Puntos de interés

Tiempo y distancia desde 7911 SE King Rd Unidad 19.

Centros comerciales Distancia de
Centros comerciales Dist.
A pie: 5 minutos 0.3 mi
A pie: 7 minutos 0.4 mi
A pie: 8 minutos 0.4 mi
7911 SE King Rd Unidad 19 tiene 3 centros comerciales en un radio de 0.4 milla, lo que supone 8 minutos caminando. Las millas y los minutos serán para la propiedad más alejada.
Parques y recreación Distancia de
Parques y recreación Dist.
Mount Talbert Nature Park
En coche: 6 minutos 2.6 mi
Brentwood Park
En coche: 7 minutos 2.7 mi
North Clackamas Park
En coche: 7 minutos 3.0 mi
Tideman Johnson Natural Area
En coche: 8 minutos 3.3 mi
Beggars-Tick Wildlife Refuge
En coche: 9 minutos 4.0 mi
7911 SE King Rd Unidad 19 tiene 5 parques en un radio de 4.0 millas, incluyendo Mount Talbert Nature Park, Brentwood Park, et Tideman Johnson Natural Area.
Medico Distancia de
Medico Dist.
En coche: 5 minutos 2.3 mi
En coche: 6 minutos 2.9 mi
En coche: 11 minutos 5.8 mi
7911 SE King Rd Unidad 19 tiene 3 medico en un radio de 5.8 millas; la más cercana es Kaiser Sunnyside Medical Center que está a 2.3 millas y a 5 minutos en automóvil.
Bases militares Distancia de
Bases militares Dist.
En coche: 21 minutos 11.9 mi
En coche: 45 minutos 26.6 mi
7911 SE King Rd Unidad 19 está a 11.9 millas de Portland Airport Air Guard Station, y está en una ubicación conveniente de otras bases militares, incluyendo Camp Bonneville Military Reservation.

También te puede gustar

Alquileres Similares Cercanos