$1,750 / Mes

615 Sterling Pl

,

Odenville, AL 35120

Hace 2 semanas
| Edit

Menos de 30 minutos

El tiempo de viaje se calcula en la hora pico.
Compartir
Favoritos
  • Habitaciones

    4

  • Baños

    2.5

  • Pies cuadrados

    1,613 pies²

615 Sterling Pl
Compartir
Favoritos

Acerca de esta casa

$1,750 depósito

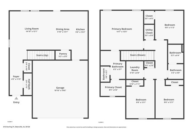
Bienvenido a 615 Sterling Place en Odenville, Alabama, una casa de dos plantas con un hermoso diseño que ofrece 4 dormitorios, 2 baños y medio y un amplio garaje para 2 coches. Construida en 2025, esta casa presenta una moderna distribución de concepto abierto en la planta principal, con una cocina bien equipada con encimeras de granito, electrodomésticos de acero inoxidable, una amplia despensa y abundante espacio para armarios. La cocina se integra a la perfección con el comedor y la sala de estar, lo que la hace ideal tanto para el día a día como para el entretenimiento. Un práctico medio baño se encuentra en la planta principal para invitados. En la planta superior, encontrará la espaciosa suite principal, que cuenta con un baño privado con lavabos dobles, ducha a ras de suelo y un amplio vestidor. Tres dormitorios adicionales ofrecen amplio espacio para familiares, invitados o una oficina en casa. Un baño completo en el pasillo y una lavandería completan la planta superior. Los duraderos suelos de tablones de vinilo de lujo en las zonas comunes y las lujosas alfombras en los dormitorios crean un ambiente cómodo y elegante. Nota: Algunas fotos con muebles se han preparado virtualmente para mostrar el potencial de la casa. Esta propiedad admite mascotas pequeñas, y se considerará la posibilidad de perros grandes según cada caso. El garaje adjunto para dos autos ofrece amplio espacio de estacionamiento y almacenamiento. Ubicada en la comunidad de Sterling Place, esta casa se encuentra en un vecindario tranquilo con calles bien mantenidas y servicios públicos subterráneos, lo que ofrece un cómodo estilo de vida suburbano. Desplazarse al trabajo es fácil y conveniente desde esta ubicación. Con rápido acceso a la autopista 411, los residentes pueden llegar al centro de Birmingham en aproximadamente 30 minutos, lo que la hace ideal para profesionales que trabajan en la ciudad o sus alrededores. La casa también se encuentra a poca distancia en coche de Trussville y Moody, lo que ofrece múltiples opciones de transporte para el trabajo y los recados diarios. Los servicios locales realzan el atractivo de esta casa. Los residentes disfrutan de opciones comerciales cercanas, como supermercados, tiendas de conveniencia y boutiques locales. La oferta gastronómica abarca desde acogedores restaurantes locales hasta populares cadenas ubicadas en los distritos comerciales cercanos. Para el ocio, la zona cuenta con parques públicos, senderos para caminar y espacios al aire libre perfectos para actividades de fin de semana. Además, los residentes se encuentran a poca distancia en coche de atracciones más importantes como Barber Motorsports Park y el lago Logan Martin, que ofrecen entretenimiento, paseos en bote y escapadas panorámicas al aire libre. Con su combinación ideal de comodidades modernas, una política flexible para mascotas y una ubicación que satisface tanto las necesidades laborales como las de estilo de vida, 615 Sterling Place es una excelente opción para quienes buscan comodidad, conveniencia y comunidad. ¡Llame hoy mismo para más información! Todos los residentes de All Americas Rental Manager están inscritos en el Paquete de Beneficios para Residentes (RBP) por $59.95 al mes, que incluye seguro de responsabilidad civil para inquilinos, desarrollo de crédito para ayudar a mejorar la calificación crediticia del residente con pagos de alquiler puntuales, hasta $1 millón en protección contra robo de identidad, entrega regular de filtros de aire HVAC (para propiedades aplicables), servicio de conserjería para la mudanza que facilita la conexión de servicios públicos y la configuración del servicio a domicilio, nuestro programa de recompensas para residentes de primer nivel, control de plagas a pedido y mucho más. Más detalles al solicitar. ¡Se admiten mascotas pequeñas! Se aplican restricciones de raza. (Perros grandes caso por caso) Tarifa única por mascota = $500.00 más el alquiler mensual por mascota (se requiere un depósito adicional de $200 por mascota para cachorros menores de 1 año) Precios de alquiler por mascota basados en el peso del animal (1-40 lbs = $25; 41 lbs+ = $50) *Si hay 2 mascotas en el hogar, el alquiler por mascota se basa en la mascota más grande* Tarifa de procesamiento de arrendamiento de $249 a pagar al momento de la mudanza. Los metros cuadrados enumerados son aproximados. El inquilino debe verificar la zonificación del sistema escolar para la casa. El residente debe verificar y transferir el servicio de electricidad a su nombre, mantener y pagar al proveedor del servicio directamente durante la duración del plazo del arrendamiento. El propietario debe verificar y mantener los servicios de agua, alcantarillado (si corresponde), gas (si corresponde) y basura a nombre del propietario durante la duración del plazo del arrendamiento. El propietario recibirá facturas y al residente se le facturará mensualmente el costo de su uso exacto de cada servicio. El residente también pagará una cuota de facturación de servicios públicos de $10 al mes, además del alquiler y cualquier otro cargo mensual. El depósito de seguridad de la vivienda equivale al importe del alquiler mensual. Este depósito solo es reembolsable durante un periodo de 24 horas después del pago por cancelación. Cualquier cancelación después de las 24 horas iniciales, excepto en caso de denegación de su solicitud de alquiler, resultará en la pérdida total del depósito. La cuota de solicitud es de $60 por solicitante. Cualquier adulto que planee vivir en la vivienda debe presentar una solicitud. Visite la página "Requisitos de Alquiler" en nuestro sitio web para obtener una lista detallada de los criterios de alquiler: Si deposita un depósito de seguridad por la vivienda, usted y cualquier adulto que vaya a vivir en ella deben presentar la solicitud antes de la medianoche del mismo día; de lo contrario, la vivienda volverá a estar en el mercado y el depósito de seguridad quedará en suspenso. Si no proporciona la documentación necesaria para que ARM complete su solicitud dentro del plazo de 24 horas, la solicitud quedará en suspenso y la vivienda volverá a estar en el mercado. America's Rental Managers es líder en el mercado de administración de propiedades y alquileres de Alabama. ¡Llámenos hoy para programar una visita! Consulte nuestras preguntas frecuentes para obtener más información sobre nuestras políticas y el proceso de solicitud.

Características únicas

  • Garaje para 2 coches
  • Perros grandes caso por caso
  • Se admiten mascotas pequeñas

615 Sterling Pl se encuentra en St Clair County en el código postal 35120. Esta área está atendida por la zona de asistencia del St Clair County School District.

* El precio mostrado es el alquiler base. No incluye las tarifas opcionales seleccionadas por el usuario, ni las tarifas variables o basadas en el uso, ni los cargos obligatorios que deben pagarse antes o en el momento de la mudanza, o al momento de la salida. El precio, la disponibilidad, las tarifas y cualquier oferta especial de alquiler aplicable están sujetos a cambios sin previo aviso.
* Las definiciones de la superficie varían. La superficie cuadrada que se muestra es aproximada.

Características de la casa

  • Lavavajillas

Contactar

  • Listado Por America's Rental Managers | America's Rental Managers
Comodidades
  • Lavavajillas
  • Garaje para 2 coches
  • Perros grandes caso por caso
  • Se admiten mascotas pequeñas
Educación
Institutos y Universidades Distancia de
Institutos y Universidades Dist.
En coche: 40 minutos 19.4 mi
En coche: 46 minutos 28.4 mi
En coche: 51 minutos 31.9 mi
En coche: 52 minutos 32.7 mi
615 Sterling Pl está a 40 minutos o 19.4 millas de Jefferson State Comm. Coll.. También está cerca de Univ. of Ala. at Birmingham et Samford University.
Escuelas
Escuela primaria pública
Grados K-5
373 Alumnos
Zona de asistencia
Escuela primaria pública
Grados PK-5
727 Alumnos
Zona de asistencia
Escuela intermedia pública
Grados 6-8
570 Alumnos
Zona de asistencia
Escuela secundaria pública
Grados 9-12
622 Alumnos
Zona de asistencia
Escuela primaria, intermedia et secundaria privada
Grados PK-12
43 Alumnos
Propiedades
Escuela primaria et intermedia privada
Grados K-8
Propiedades
Escuela primaria et intermedia privada
Grados K-8
5 Alumnos
Propiedades
Transporte

615 Sterling Pl está cerca de Birmingham-Shuttlesworth International, a 24.5 millas o 40 minutos de distancia.

Tren suburbano Distancia de
Tren suburbano Dist.
En coche: 44 minutos 27.4 mi
Aeropuertos Distancia de
Aeropuertos Dist.
Birmingham-Shuttlesworth International
En coche: 40 minutos 24.5 mi
Cómo desplazarse
No accesible a pie
Caminabilidad
10 / 100
Excepcionalmente apto para conducir
Facilidad para Conducir
100 / 100
Un poco apto para andar en bici
Ciclabilidad
20 / 100

Puntajes proporcionados por

¿Qué significan la caminabilidad, el transporte público, la facilidad para conducir y la ciclabilidad? La caminabilidad mide la distancia a pie a las necesidades diarias. El transporte público mide el acceso al transporte público. La facilidad para conducir mide la congestión, la disponibilidad de estacionamiento y el acceso a las principales vías. La ciclabilidad mide qué tan adecuado es el área para andar en bicicleta. Cómo funciona
-
Soundscore
- / 100

Tráfico

-

Aeropuerto

-

Empresas

-

Puntajes proporcionados por

HowLoud ¿Qué es una clasificación de puntaje de ruido? La clasificación de puntaje de ruido es el conjunto del ruido provocado por el transito de vehículos o de aviones y de fuentes locales. Cómo funciona
Puntos de interés

Tiempo y distancia desde 615 Sterling Pl.

Centros comerciales Distancia de
Centros comerciales Dist.
En coche: 17 minutos 5.6 mi
En coche: 17 minutos 6.1 mi
En coche: 20 minutos 7.9 mi
615 Sterling Pl tiene 3 centros comerciales en un radio de 7.9 millas, lo que supone 20 minutos en automóvil. Las millas y los minutos serán para la propiedad más alejada.
Bases militares Distancia de
Bases militares Dist.
En coche: 49 minutos 31.4 mi
En coche: 74 minutos 43.1 mi
615 Sterling Pl está a 31.4 millas de Navy/Marine Training Center, y está en una ubicación conveniente de otras bases militares, incluyendo Anniston Army Depot.

También te puede gustar

Alquileres Similares Cercanos