Mapa
  • Herramientas de arrendamiento
    • Favoritos
    • Busquedas guardadas
  • Apartamentos en renta
  • Casas en renta
  • Condominios en renta
  • Casas adosadas en renta
  • Tacoma alquiler promedio
  • Guía Local
  • Calculadora de alquiler
  • Empresas de gestión de propiedades

Lenguaje

Logo de Apartamentos.com
Registrar / Iniciar sesión
  • Foto principal - 3308 St Andrews Ct NE
  • Foto del edificio - 3308 St Andrews Ct NE
    Foto del edificio - 3308 St Andrews Ct NE
  • Foto del edificio - 3308 St Andrews Ct NE
    Foto del edificio - 3308 St Andrews Ct NE
Comunícate con esta propiedad

3308 St Andrews Ct NE media gallery Unidad
call 253-785-2915
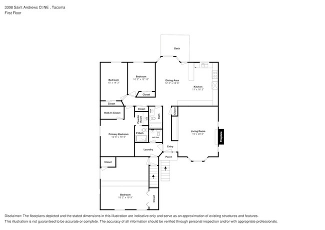
Floor Plan View Body
Casas Washington Pierce County Tacoma Northeast Tacoma
$3,265 / Mes

3308 St Andrews Ct NE

,

Tacoma, WA 98422

Compartir
Favoritos
253-785-2915
  • Habitaciones

    4

  • Baños

    2.5

  • Pies cuadrados

    2,113 pies²

  • Disponible

    Disp. ahora

Puntos destacados

  • Se permiten mascotas
  • Vestidores
  • Chimenea
  • Recinto cerrado
  • Cubierta
3308 St Andrews Ct NE
Property Management Company Logo
Compartir
Favoritos

Acerca de esta casa

3308 St Andrews Ct NE
Disp. ahora

Alquile esta casa y obtenga más de la administración profesional de propiedades de Invitation Homes. Esta casa viene completamente equipada con comodidades de calidad, servicios imprescindibles, tecnología de punta y mantenimiento profesional ProCare®. Su pago mensual total estimado es de $3389.95. Esto cubre su renta base, $3265.00 + nuestros servicios obligatorios diseñados para facilitarle la vida: Internet y medios ($85), Casa inteligente con timbre con video ($30) y Tarifa de servicio de facturación de servicios públicos ($9.95). La renta base varía según el plazo de arrendamiento seleccionado. ¿Quién dijo que la casa perfecta no existe? ¡Está aquí! Esta distribución facilita el entretenimiento, la cocina o la relajación cuando necesite un descanso. El lujoso piso de tablones de vinilo seguramente le encantará. Invite a sus amigos a esta impresionante cocina. Seguramente elogiarán las elegantes encimeras, los electrodomésticos de acero inoxidable y los gabinetes de primera calidad. En el exterior, el atractivo patio trasero cercado ofrece una terraza y un espacio para estirarse, tomar el sol o contemplar las estrellas. ¡Haga suya esta magnífica casa y solicite en línea hoy mismo! Debido a las restricciones de la ciudad de Tacoma, esta casa no admite mascotas. Esto no aplica a animales de servicio o asistencia. Esta casa se encuentra dentro del área de servicio donde se requiere nuestro paquete de internet, y estará equipada con internet de alta velocidad y capacidad de transmisión de contenido multimedia por solo $85 al mes, una excelente oferta. Esta tarifa mensual se incluirá en su contrato de arrendamiento. En Invitation Homes, ofrecemos casas en alquiler que admiten mascotas, con patio y tecnología de hogar inteligente en vecindarios increíbles en todo el país. Viva en una casa estupenda sin las molestias ni el compromiso a largo plazo de ser propietario. Descubra la casa de sus sueños con Invitation Homes. Nuestro paquete Lease Easy, que incluye hogar inteligente, entrega de filtros de aire y administración de servicios públicos, es una parte clave de su estilo de vida de arrendamiento sin preocupaciones. Estos servicios son obligatorios en su contrato de arrendamiento y tienen un costo mensual adicional. También pueden aplicarse tarifas mensuales para mascotas y piscinas. Características y comodidades de la casa: Ventanales, Terraza, Patio cercado, Chimenea, Garaje, Plazos de arrendamiento largos, Suelo de vinilo de lujo, Dormitorio principal en la planta baja, Iluminación empotrada, Casa inteligente, Electrodomésticos de acero inoxidable, Vestidor, Conexiones para lavadora/secadora y administración profesional a cargo de Invitation Homes. Esta casa de Invitation Homes se encuentra actualmente en renovación, pero estará disponible pronto. Aún puede presentar su solicitud; contáctenos para obtener más detalles o presente su solicitud ahora. Invitation Homes es un arrendador de vivienda equitativa bajo la FHA. Pueden aplicarse las leyes locales, estatales y federales correspondientes. Se aplican términos y condiciones adicionales. Este anuncio no es una oferta de alquiler. Debe enviar información adicional, incluyendo una solicitud de alquiler y una tarifa de solicitud. Se cree que toda la información de arrendamiento es precisa, pero pueden haber ocurrido cambios desde que se tomaron las fotografías y los metros cuadrados son estimados. Además, los precios y las fechas pueden cambiar sin previo aviso. Consulte el sitio web de InvitationHomes para obtener más información. Tenga cuidado con las estafas: Los empleados de Invitation Homes nunca le pedirán su nombre de usuario y contraseña. Invitation Homes no se anuncia en Craigslist, Social Serve, etc. Somos propietarios de nuestras casas; no hay propietarios privados. Todos los pagos de alquiler con Invitation Homes se realizan directamente a través de nuestro sitio web, nunca mediante transferencia bancaria ni aplicaciones de pago como Zelle, PayPal o Cash App. Para más información, envíe una consulta sobre esta vivienda. Las solicitudes están sujetas a nuestros requisitos de calificación. Se aplican términos y condiciones adicionales. CONSENTIMIENTO PARA RECIBIR LLAMADAS Y MENSAJES DE TEXTO: Al ingresar su información de contacto, usted consiente expresamente en recibir correos electrónicos, llamadas y mensajes de texto de Invitation Homes, incluyendo llamadas automáticas, pregrabadas o con voz artificial, así como comunicaciones de marketing. Pueden aplicarse tarifas de mensajes y datos. También acepta nuestros Términos de uso y nuestra Política de privacidad.

3308 St Andrews Ct Ne se encuentra en Pierce County en el código postal 98422. Esta área está atendida por la zona de asistencia del Tacoma School District.

* El precio mostrado es el alquiler base. No incluye las tarifas opcionales seleccionadas por el usuario, ni las tarifas variables o basadas en el uso, ni los cargos obligatorios que deben pagarse antes o en el momento de la mudanza, o al momento de la salida. El precio, la disponibilidad, las tarifas y cualquier oferta especial de alquiler aplicable están sujetos a cambios sin previo aviso.
* Las definiciones de la superficie varían. La superficie cuadrada que se muestra es aproximada.

Tarifas y políticas

Las tarifas que se indican a continuación son proporcionadas por la comunidad y pueden excluir los servicios públicos o complementos. Todos los pagos se realizan directamente a la propiedad y no son reembolsables a menos que se especifique lo contrario. Utiliza la Calculadora de Costos para determinar los costos según tus necesidades.

  • Servicios y elementos básicos
    • Smart Home with video doorbell
      Cobrado por unidad.
      $30 / mes
    • Internet & Media
      Cobrado por unidad.
      $85 / mes
    • Utility Billing Service Fee
      Cobrado por unidad.
      $9.95 / mes
  • Perros
    • Se admiten
  • Gatos
    • Se admiten
  • Garaje

Renuncia de responsabilidad de los cargos de la propiedad: Basado en datos proporcionados por la comunidad y estudios de mercado independientes. Sujeto a cambios sin previo aviso. Puede excluir tarifas por servicios obligatorios u opcionales y servicios públicos basados ​​en el consumo.

Características de la casa

  • Chimenea
  • Vestidores
  • Recinto cerrado
  • Cubierta

Contactar

  • Número de Teléfono
  • Sitio web Ver el sitio web de la propiedad
  • Contactar
  • Fuente
Ubicación Obtén las direcciones
Escuelas Restaurantes Supermercados Café Bancos Compras Gimnasio
| Edit
Editar viaje

Destination is required

Menos de 30 minutos

El tiempo de viaje se calcula en la hora pico.
Vecindario

El noreste de Tacoma, conocida como la RED, mira hacia Commencement Bay y el puerto de Tacoma a lo largo de la orilla occidental en ángulo, del centro de Tacoma, del otro lado de la bahía hacia el sudeste. Con la excepción de los Browns Point, el RED se expande al este de la bahía a las afueras de los límites de la ciudad y de la frontera compartida con Federal Way en King County.A en coche del centro de la ciudad implica un círculo alrededor de 8-mile el extremo sur del puerto, el cual casi en tu totalidad cortes de descuento en el noreste de Tacoma desde el resto de la ciudad. Este aislamiento brinda el RED tu propia y distintiva personality.Breathtaking vistas, la zona suburbana de paz y tranquilidad, y la opción de acceso a las comodidades urbanas en el centro de Seattle y de Tacoma han atraído una población de well-educado, high-earning residentes, RED Tacoma de lo que hace que el vecindario más exclusivo.

Obtén más información sobre la vida en Northeast Tacoma 
Comodidades
  • Chimenea
  • Vestidores
  • Recinto cerrado
  • Cubierta
Educación
Institutos y Universidades Distancia de
Institutos y Universidades Dist.
UW Tacoma
En coche: 13 minutos 7.8 mi
University of Puget Sound
En coche: 20 minutos 11.3 mi
Tacoma Community College
En coche: 23 minutos 11.9 mi
Highline Community College
En coche: 26 minutos 12.0 mi
3308 St Andrews Ct NE está a 13 minutos o 7.8 millas de UW Tacoma. También está cerca de Highline Community College et University of Puget Sound.
Escuelas
  • Escuelas públicas
  • Escuelas privadas
Northeast Tacoma Elementary School
Escuela primaria pública
Grados PK-5
367 Alumnos
Propiedades
Crescent Heights Elementary School
Escuela primaria pública
Grados K-5
396 Alumnos
Zona de asistencia
Meeker Middle School
Escuela intermedia pública
Grados 6-8
586 Alumnos
Zona de asistencia
Stadium High School
Escuela secundaria pública
Grados 9-12
1,571 Alumnos
Zona de asistencia
Faith Baptist Christian Academy
Escuela primaria, intermedia et secundaria privada
Grados PK-12
36 Alumnos
Propiedades
Datos de escuelas proporcionados por La Calificación de GreatSchools ayuda a los padres a comparar las escuelas dentro de un Estado basado en una variedad de indicadores de calidad y proporciona una imagen útil de la eficacia con la que cada escuela sirve a todos sus estudiantes. Las calificaciones están en una escala de 1 (por debajo del promedio) a 10 (encima del promedio) y puede incluir los puntajes de prueba, preparación universitaria, progreso académico, cursos avanzados, equidad, disciplina y datos de asistencia. Nosotros también recomendamos a los padres visitar las escuelas, considerar otra información sobre el desempeño y los programas escolares, y tener en cuenta las necesidades de la familia como parte del proceso de selección de la escuela.

Ver la metodología de calificación de GreatSchools


Datos proporcionados por GreatSchools.org © 2026. Todos los derechos reservados.
Transporte

Las opciones de transporte disponibles en Tacoma incluyen Theater District, a 8.2 millas de 3308 St Andrews Ct NE. 3308 St Andrews Ct NE está cerca de Seattle-Tacoma International, a 17.8 millas o 34 minutos de distancia.

Tránsito / metro Distancia de
Tránsito / metro Dist.
Theater District
En coche: 14 minutos 8.2 mi
Theater District/South 9Th
En coche: 14 minutos 8.4 mi
Old City Hall
En coche: 14 minutos 8.6 mi
S 4Th
En coche: 15 minutos 8.8 mi
Stadium District
En coche: 16 minutos 9.2 mi
Tren suburbano Distancia de
Tren suburbano Dist.
Tacoma Dome Station
En coche: 14 minutos 8.2 mi
South Tacoma Station
En coche: 19 minutos 11.9 mi
Lakewood Station
En coche: 24 minutos 15.5 mi
King Street (Seattle) Station
En coche: 43 minutos 28.3 mi
Olympia-Lacey Amtrak Station
En coche: 57 minutos 36.6 mi
Aeropuertos Distancia de
Aeropuertos Dist.
Seattle-Tacoma International
En coche: 34 minutos 17.8 mi
Cómo desplazarse
Un poco accesible a pie
Caminabilidad
30 / 100
Transporte público mínimo
Transporte Público
0 / 100
Muy apto para conducir
Facilidad para Conducir
80 / 100
Favorablemente apto para andar en bici
Ciclabilidad
40 / 100

Puntajes proporcionados por

¿Qué significan la caminabilidad, el transporte público, la facilidad para conducir y la ciclabilidad? La caminabilidad mide la distancia a pie a las necesidades diarias. El transporte público mide el acceso al transporte público. La facilidad para conducir mide la congestión, la disponibilidad de estacionamiento y el acceso a las principales vías. La ciclabilidad mide qué tan adecuado es el área para andar en bicicleta. Cómo funciona
-
Soundscore™
- / 100

Tráfico

-

Aeropuerto

-

Empresas

-

Puntajes proporcionados por

HowLoud ¿Qué es una clasificación de puntaje de ruido? La clasificación de puntaje de ruido es el conjunto del ruido provocado por el transito de vehículos o de aviones y de fuentes locales. Cómo funciona
Puntos de interés

Tiempo y distancia desde 3308 St Andrews Ct NE.

Centros comerciales Distancia de
Centros comerciales Dist.
North Shore Shopping Center
En coche: 4 minutos 1.5 mi
Hoyt Road Retail Center
En coche: 5 minutos 1.6 mi
Northshore Plaza
En coche: 5 minutos 1.6 mi
3308 St Andrews Ct NE tiene 3 centros comerciales en un radio de 1.6 millas, lo que supone 5 minutos en automóvil. Las millas y los minutos serán para la propiedad más alejada.
Parques y recreación Distancia de
Parques y recreación Dist.
Dash Point State Park
En coche: 8 minutos 3.3 mi
Browns Point Lighthouse Park
En coche: 8 minutos 3.4 mi
Children's Museum of Tacoma
En coche: 14 minutos 8.4 mi
Foss Waterway Seaport
En coche: 15 minutos 9.0 mi
Seymour Botanical Conservatory
En coche: 15 minutos 9.0 mi
3308 St Andrews Ct NE tiene 5 parques en un radio de 9.0 millas, incluyendo Dash Point State Park, Browns Point Lighthouse Park, et Children's Museum of Tacoma.
Medico Distancia de
Medico Dist.
St. Francis Community Hospital
En coche: 11 minutos 4.6 mi
St. Joseph Medical Center
En coche: 14 minutos 8.3 mi
Multicare Auburn Medical Center
En coche: 18 minutos 9.5 mi
3308 St Andrews Ct NE tiene 3 medico en un radio de 9.5 millas; la más cercana es St. Francis Community Hospital que está a 4.6 millas y a 11 minutos en automóvil.
Bases militares Distancia de
Bases militares Dist.
McChord Air Force Base
En coche: 29 minutos 17.7 mi
Camp Murray Washington
En coche: 31 minutos 19.9 mi
Fort Lewis
En coche: 46 minutos 25.1 mi
3308 St Andrews Ct NE tiene 3 bases militares en un radio de 25.1 millas; la más cercana es McChord Air Force Base que está a 17.7 millas y a 29 minutos en automóvil.

3308 St Andrews Ct NE Fotos

Apartamentos cercanos

A 50 millas de 3308 St Andrews Ct NE Tacoma, WA 98422

  • 34426 10th Ave SW

    Federal Way, WA 98023

    $5,500 Precio mensual total

    4 Hab Contrato de 12 meses 2.4 mi

  • 6810 Topaz Dr SW

    Tacoma, WA 98498

    $3,700 Precio mensual total

    4 Hab Contrato de 12 meses 8.9 mi

  • 18403 96th Ave E

    Puyallup, WA 98375

    $2,940

    4 Hab 14.5 mi

  • 25626 169th Pl SE

    Covington, WA 98042

    $4,995 Precio mensual total

    5 Hab Contrato de 12 meses 14.5 mi

  • 20005 12th Ave E

    Spanaway, WA 98387

    $2,880 Precio mensual total

    4 Hab 14.7 mi

  • 19922 98th Ave E

    Graham, WA 98338

    $2,990 Precio mensual total

    4 Hab 15.4 mi

Volver arriba
Enviar un Mensaje
Contactar
enter move in date in the format: 2 digit month / 2 digit day / 4 digit year

Me gustaría...

Enviar Mensaje

Enviar solicitud

Enviar un Mensaje
Contactar

¡Gracias! Se envió tu correo electrónico.

Error

Reportar un problema Imprimir Obtén las direcciones
Prueba estas búsquedas cercanas populares

Ciudades

  • Casas en Fircrest
  • Casas en Fife
  • Casas en University Place
  • Casas en Ruston
  • Casas en Waller

Buscar por dormitorios

  • 1 Habitación Casas en Tacoma
  • 2 Habitación Casas en Tacoma
  • 3 Habitación Casas en Tacoma
  • 4+ Habitación Casas en Tacoma
  • Alquiler de Habitaciones en Tacoma

Otros tipos de alquileres

  • Casas en alquiler en Tacoma
  • Condominios en alquiler en Tacoma
  • Casas adosadas en alquiler en Tacoma
  • Alquiler Directa Propietario Tacoma
  • Tacoma Alquiler Dúplex
  • Casas en alquiler en 98422
  • Condominios en alquiler en 98422
  • Casas adosadas en alquiler en 98422

Mantenerte dentro del presupuesto

  • Casas por menos de $700 en Tacoma
  • Casas por menos de $800 en Tacoma
  • Casas por menos de $1,000 en Tacoma
  • Casas por menos de $1,100 en Tacoma
  • Casas por menos de $1,200 en Tacoma
  • Casas por menos de $1,300 en Tacoma
  • Casas por menos de $1,400 en Tacoma
  • Casas por menos de $2,000 en Tacoma

Filtrar por servicios populares

  • Casas con mascotas en Tacoma
  • Casas amuebladas en Tacoma
  • Casas con patio en alquiler en Tacoma

Encontrar vivienda de especialidad

  • Casas de lujo en Tacoma
  • Casas baratas en Tacoma
  • Casas nuevas en alquiler en Tacoma

Inmuebles cercanos

  • Cedardale
  • Norpoint Landing Apartments
  • Maplewood
  • Norpoint Village - 55+ Community
  • The Fairways
  • Acerca de nosotros
  • Anunciar
  • Términos de servicio
  • Declaración de privacidad
  • Igualdad de oportunidades
  • Evita fraudes y estafas
  • Accesibilidad
  • Mapa del Sitio
Property Logo
apartments.com
© 2026 CoStar Group, Inc. Oportunidad de vivienda equitativa

Oportunidad de vivienda equitativa

© 2026 CoStar Group, Inc.

Oportunidad de vivienda equitativa

Ready to Apply?

Good News! This rental is accepting applications through Apartments.com. Act now and your $ purchase will include 9 additional FREE application submissions to participating properties.

Or if you already have an account


Requerido

Requerido

Dirección de correo electrónico no válida

Usted debe reconocer la cláusula de no responsabilidad para continuar
Siguiente
Continuar

Lléveme al sitio web de esta propiedad.
Enviar mensaje
¿Interesado/a en esta propiedad? Envíe un mensaje hoy mismo.

¿Qué son las clasificaciones Walk Score®, Transit Score® y Bike Score®?

Walk Score® mide la viabilidad peatonal de cualquier dirección. Transit Score® mide el acceso a transporte público. Bike Score® mide la infraestructura de rutas para bicicletas de cualquier dirección.

Aprende cómo funciona

¿Qué es una clasificación de puntaje de ruido?

La clasificación de puntaje de ruido es el conjunto del ruido provocado por el transito de vehículos o de aviones y de fuentes locales.

Aprende cómo funciona

Compartir Este Listado
Listing Image

3308 St Andrews Ct NE

Tacoma, WA 98422

Electrónico

Enlace copiado

(253) 785-2915
Obtén las direcciones
Escuelas Restaurantes Supermercados Café Bancos Compras Gimnasio