$2,280 / Mes

139 Shenandoah Ln

,

LaGrange, GA 30241

Compartir
Favoritos
  • Habitaciones

    4

  • Baños

    2.5

  • Pies cuadrados

    1,896 pies²

139 Shenandoah Ln
Compartir
Favoritos

Acerca de esta casa

$1,000 depósito

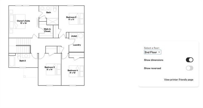
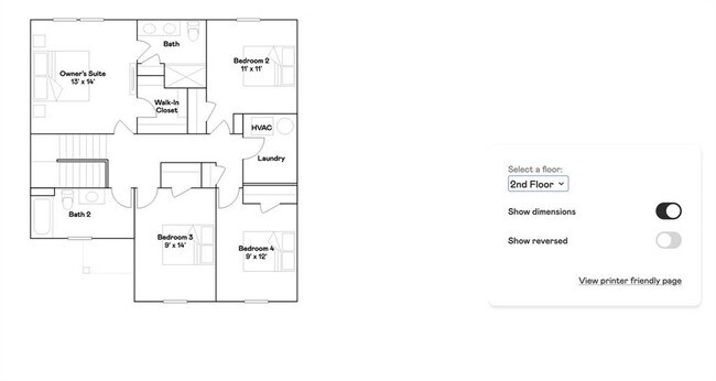
¡Casa nueva de 4 habitaciones, a estrenar! ¡Vida moderna con comodidades comunitarias! Sea el primero en vivir en esta hermosa casa de dos pisos, completamente nueva y a estrenar, que ofrece la combinación perfecta de comodidad, espacio y estilo moderno. Al entrar, le da la bienvenida un luminoso diseño de concepto abierto con una cocina contemporánea con una gran isla central, ideal para cocinar, comer y entretener. La cocina se integra a la perfección con el comedor y una espaciosa sala de estar, creando un espacio cálido y acogedor para la vida diaria. En la planta superior, las cuatro habitaciones están estratégicamente ubicadas para brindar privacidad y comodidad. La espaciosa suite principal sirve como un refugio relajante, con baño privado y un amplio vestidor. Disfrute de los beneficios de una casa impecable, lista para mudarse, con acabados nuevos en toda la propiedad, que ofrece un estilo de vida limpio y de bajo mantenimiento. Las comodidades comunitarias incluyen: piscina, casa club, área de juegos infantiles y parque para perros. ID de MLS: 7740705

139 Shenandoah Ln se encuentra en Troup County en el código postal 30241. Esta área está atendida por la zona de asistencia del Troup County School District.

* El precio mostrado es el alquiler base. No incluye las tarifas opcionales seleccionadas por el usuario, ni las tarifas variables o basadas en el uso, ni los cargos obligatorios que deben pagarse antes o en el momento de la mudanza, o al momento de la salida. El precio, la disponibilidad, las tarifas y cualquier oferta especial de alquiler aplicable están sujetos a cambios sin previo aviso.
* Las definiciones de la superficie varían. La superficie cuadrada que se muestra es aproximada.

Tarifas y políticas

Las tarifas que se indican a continuación son proporcionadas por la comunidad y pueden excluir los servicios públicos o complementos. Todos los pagos se realizan directamente a la propiedad y no son reembolsables a menos que se especifique lo contrario. Utiliza la Calculadora de Costos para determinar los costos según tus necesidades.

  • Elementos básicos por única vez
    • Pagadero al momento de la mudanza
      • Security Deposit - Refundable
        Cobrado por unidad.
        $1,000

Renuncia de responsabilidad de los cargos de la propiedad: Basado en datos proporcionados por la comunidad y estudios de mercado independientes. Sujeto a cambios sin previo aviso. Puede excluir tarifas por servicios obligatorios u opcionales y servicios públicos basados ​​en el consumo.

Características de la casa

Lavavajillas

Microondas

Nevera

Zona de eliminación de desechos

  • Compactador de basura
  • Lavavajillas
  • Zona de eliminación de desechos
  • Microondas
  • Fogón
  • Nevera

Contactar

  • Listado Por Vineel Keesara | Dharma Realty,LLC
  • Fuente
    First Multiple Listing Service, Inc.
Copyright © 2026 First Multiple Listing Service, Inc. All rights reserved. All information provided by the listing agent/broker is deemed reliable but is not guaranteed and should be independently verified.
| Edit

Menos de 30 minutos

El tiempo de viaje se calcula en la hora pico.
Comodidades
  • Compactador de basura
  • Lavavajillas
  • Zona de eliminación de desechos
  • Microondas
  • Fogón
  • Nevera
Educación
Institutos y Universidades Distancia de
Institutos y Universidades Dist.
En coche: 77 minutos 43.8 mi
139 Shenandoah Ln está a 77 minutos o 43.8 millas de Southern Union State C.C..
Escuelas
Escuela primaria pública
Grados PK-5
730 Alumnos
Zona de asistencia
Escuela intermedia pública
Grados 6-8
950 Alumnos
Zona de asistencia
Escuela secundaria pública
Grados 9-12
1,405 Alumnos
Zona de asistencia
Escuela primaria, intermedia et secundaria privada
Grados K-12
6 Alumnos
Propiedades
Grados PK-5
44 Alumnos
Propiedades
Transporte
Cómo desplazarse
Favorablemente apto para caminar
Caminabilidad
40 / 100
Excepcionalmente apto para conducir
Facilidad para Conducir
90 / 100
No apto para andar en bici
Ciclabilidad
10 / 100

Puntajes proporcionados por

¿Qué significan la caminabilidad, el transporte público, la facilidad para conducir y la ciclabilidad? La caminabilidad mide la distancia a pie a las necesidades diarias. El transporte público mide el acceso al transporte público. La facilidad para conducir mide la congestión, la disponibilidad de estacionamiento y el acceso a las principales vías. La ciclabilidad mide qué tan adecuado es el área para andar en bicicleta. Cómo funciona
-
Soundscore
- / 100

Tráfico

-

Aeropuerto

-

Empresas

-

Puntajes proporcionados por

HowLoud ¿Qué es una clasificación de puntaje de ruido? La clasificación de puntaje de ruido es el conjunto del ruido provocado por el transito de vehículos o de aviones y de fuentes locales. Cómo funciona
Puntos de interés

Tiempo y distancia desde 139 Shenandoah Ln.

Centros comerciales Distancia de
Centros comerciales Dist.
En coche: 6 minutos 1.6 mi
En coche: 6 minutos 1.9 mi
En coche: 6 minutos 1.9 mi
139 Shenandoah Ln tiene 3 centros comerciales en un radio de 1.9 millas, lo que supone 6 minutos en automóvil. Las millas y los minutos serán para la propiedad más alejada.
Parques y recreación Distancia de
Parques y recreación Dist.
Hills & Dales Estate
En coche: 10 minutos 4.6 mi
139 Shenandoah Ln tiene un parque cercano, Hills & Dales Estate , a 4.6 millas o 10 minutos de distancia.
Medico Distancia de
Medico Dist.
En coche: 11 minutos 6.1 mi
139 Shenandoah Ln está a 6.1 millas y a 11 minutos en automóvil de WellStar West Georgia Medical Center.
Bases militares Distancia de
Bases militares Dist.
En coche: 80 minutos 55.9 mi
En coche: 90 minutos 64.6 mi
En coche: 102 minutos 69.3 mi
139 Shenandoah Ln tiene 3 bases militares en un radio de 69.3 millas; la más cercana es Fort Benning Columbus que está a 55.9 millas y a 80 minutos en automóvil.

También te puede gustar

Alquileres Similares Cercanos