$4,990 / Month

2 Iona St

,

Ottawa, ON K1Y 0V1

Today
| Edit

Under 30 minutes

Commute Time is calculated at rush hour.
Share Listing
Favorites
866-530-7737
  • Bedrooms

    4

  • Bathrooms

    3

  • Square Feet

    --

  • Available

    Available Now

2 Iona St
Share Listing
Favorites

About This Home

Available Now

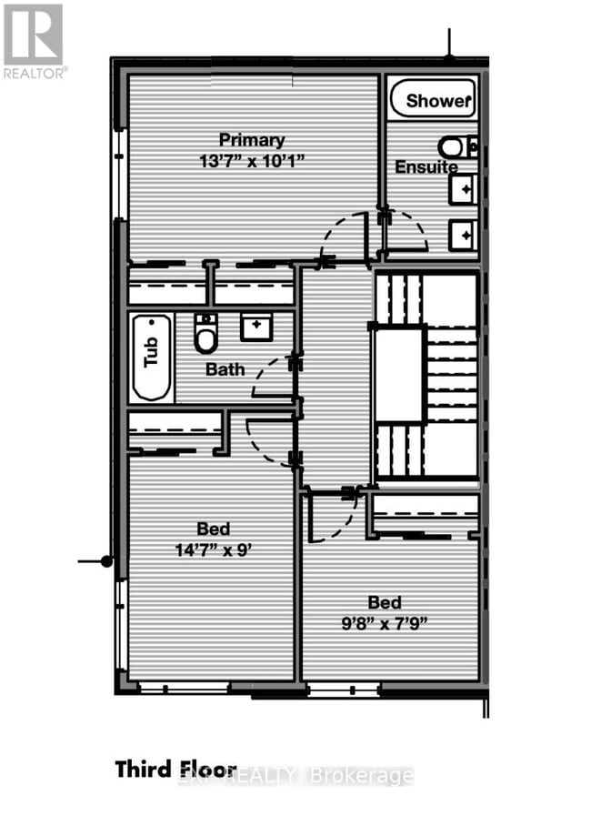
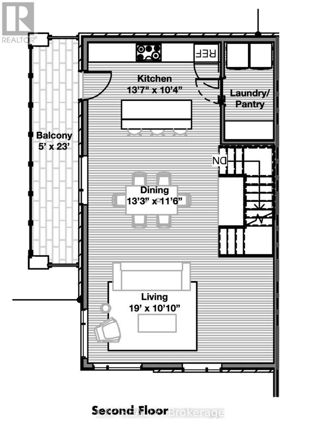
Brand-new executive townhome for rent in the heart of Wellington Village offering over 2,000 sq. ft. of beautifully designed living space across three storeys plus a fully finished basement and attached garage. The main level features a spacious tiled foyer with double closets and inside access to the garage,along with a bright bedroom or home office and a convenient 3-piece bath. The second level boasts an open-concept kitchen,living and dining area flooded with natural light,complete with a large centre island,quartz countertops,stainless steel appliances,an oversized walk-in pantry with laundry,and access to an impressive 5' x 20' private balcony. The third floor offers a generous primary suite with double closets and an ensuite bath,plus two additional bedrooms and a full bathroom. The fully finished basement provides a bright rec room and finished storage space. Ideally located steps to Fisher Park and Elmdale Public School,minutes to the shops and restaurants along Wellington Street West,walking distance to the Tunney's Pasture O-train station,with quick access via the Harmer Avenue Footbridge to the Civic Hospital and the Experimental Farm,and easy Highway 417 access for seamless commuting-an exceptional opportunity to enjoy modern living in one of Ottawa's most sought-after neighbourhoods. (id:52069) ID#: 1893553

2 Iona St is a townhouse located in Ottawa, ON. This listing has rentals from $4990

* Price shown is base rent. Excludes user-selected optional fees and variable or usage-based fees and required charges due at or prior to move-in or at move-out. Price, availability, fees, and any applicable rent special are subject to change without notice.
* Square footage definitions vary. Displayed square footage is approximate.

Townhome Features

  • Air Conditioning

Contact

  • Listed by Nick Lalonde | Ottawa Real Estate Board
  • Phone Number
  • Website View Property Website
  • Contact
  • Source
City - Ottawa

Ottawa, the capital of Canada, is located in southeastern Ontario. Originally a trading and lumber town, Ottawa became the capital in 1867. Due to its location between English-speaking Ontario and French-speaking Québec, Ottawa is one of the most bilingual cities in Canada. The metropolitan area spans the Ottawa River, providing scenic views throughout the city.

The federal government is Ottawa’s largest employer, with additional jobs in technology and telecommunications. The University of Ottawa and Carleton University are both located in the city.

Residents enjoy extensive parks and green space, including the Rideau Canal, which fills with boats in summer and becomes the world’s longest skating rink in winter. Major’s Hill Park offers scenic walks near museums and historic buildings, while Walter Baker Park is a favourite among dog owners. Dining options include French cuisine at Absinthe, casual meals at the Brig Pub, and family-owned favourites like Cumberland Pizza.

Learn more about living in Ottawa 
Amenities
  • Air Conditioning
Education
Colleges & Universities Distance
Colleges & Universities Distance
Drive: 8 min 5.5 km
Drive: 9 min 6.0 km
Drive: 8 min 6.4 km
Drive: 10 min 7.9 km
2 Iona St is within 8 minutes or 5.5 kilometers from Carleton University. It is also near University of Ottawa and Saint Paul University.
Schools
Public Elementary School
Grades K-5
Attendance Zone
Public Elementary School
Grades K-5
Attendance Zone
Public Elementary School
Grades K-5
Attendance Zone
Grades K-5
Attendance Zone
Public Elementary School
Grades K-5
Attendance Zone
Public Elementary School
Grades K-5
Attendance Zone
Private Elementary School
Grades K-5
Nearby
Private Elementary School
Grades K-5
Nearby
Private High School
Grades 9-12
Nearby
Private High School
Grades 9-12
Nearby
Transportation

Transportation options available in Ottawa include Tunney's Pasture, located 1.2 kilometers from 2 Iona St. 2 Iona St is near Ottawa International, located 11.7 kilometers or 18 minutes away.

Transit / Subway Distance
Transit / Subway Distance
Walk: 14 min 1.2 km
Drive: 3 min 2.1 km
Drive: 3 min 2.3 km
Drive: 5 min 2.7 km
Drive: 7 min 4.3 km
Commuter Rail Distance
Commuter Rail Distance
Drive: 9 min 7.8 km
Drive: 17 min 14.6 km
Drive: 45 min 59.2 km
Airports Distance
Airports Distance
Ottawa International
Drive: 18 min 11.7 km
Getting Around
Moderately Walkable
Walkability
70 / 100
Exceptional Public Transit
Transit
90 / 100
Moderately Drivable
Drivability
70 / 100
Very Bikeable
Bikeability
80 / 100

Scores provided by

What do Walkability, Transit, Drivability, and Bikeability mean? Walkability measures the walking distance to day-to-day needs. Transit measures access to public transportation. Drivability measures congestion, parking availability, and access to major roads. Bikeability measures the suitability for cycling. How It Works
-
Soundscore
- / 100

Traffic

-

Airport

-

Businesses

-

Scores provided by

HowLoud What is a Sound Score Rating? A Sound Score Rating aggregates noise caused by vehicle traffic, airplane traffic and local sources. How It Works
Points of Interest

Time and distance from 2 Iona St.

Shopping Centers Distance
Shopping Centers Distance
Walk: 9 min 0.8 km
Walk: 16 min 1.4 km
Drive: 3 min 1.8 km
2 Iona St has 3 shopping centers within 1.8 kilometers, which is about a 3-minute drive. The kilometers and minutes will be for the farthest away property.
Parks and Recreation Distance
Parks and Recreation Distance
Andrew Haydon Park
Drive: 12 min 11.8 km
2 Iona St has a nearby park, Andrew Haydon Park , located 11.8 kilometers or 12 minutes away.
Military Bases Distance
Military Bases Distance
Drive: 13 min 14.0 km
Drive: 20 min 22.0 km
2 Iona St is 14.0 kilometers from National Defence Headquarters Carling, and is convenient to other military bases, including Canadian Forces Station Leitrim.

You May Also Like